Abbildung ähnlich
Schedel

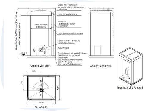
Schedel STEAM Dampfkabine 1450x1250x2400

K19161585 4029209568605 STEAM0100
auf Anfrage
je 1 Stück
keine Verfügbarkeitsinformationen

Verkaufsdaten

Mindestbestellmenge 1 Stück
Bestellschritt 1 Stück

Beschreibung

Merkmale

Produktklasse Zusatzartikel